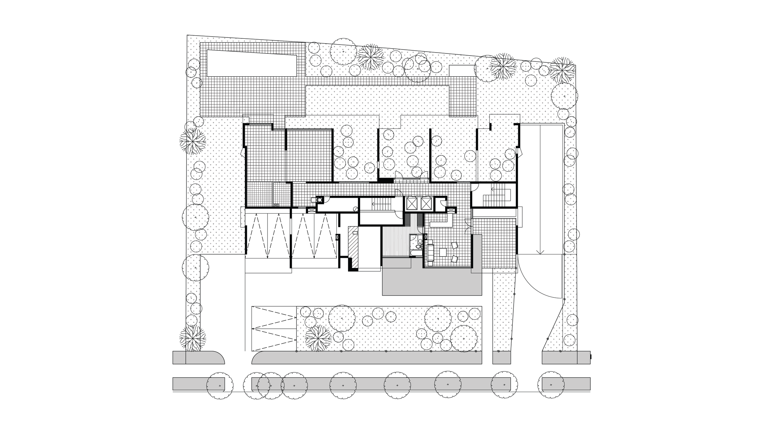
Edificio Plaza Sucre

Proyecto Residencial Inmobiliario

Desarrollado asociado con Akros Arquitectura Ltda.

10 pisos - 45 departamentos

 

Densificación Equilibrada

 

Ubicación

Comuna de Providencia, Santiago RM

Gestor

Inmobiliaria Plaza Sucre

Superficie

4.052,13 m²

Fecha

2005 - 2006

Situación

Construido

 
Anterior
Anterior

Edificio GDC - Providencia

Siguiente
Siguiente

Plan Maestro Los Perales - Requinoa